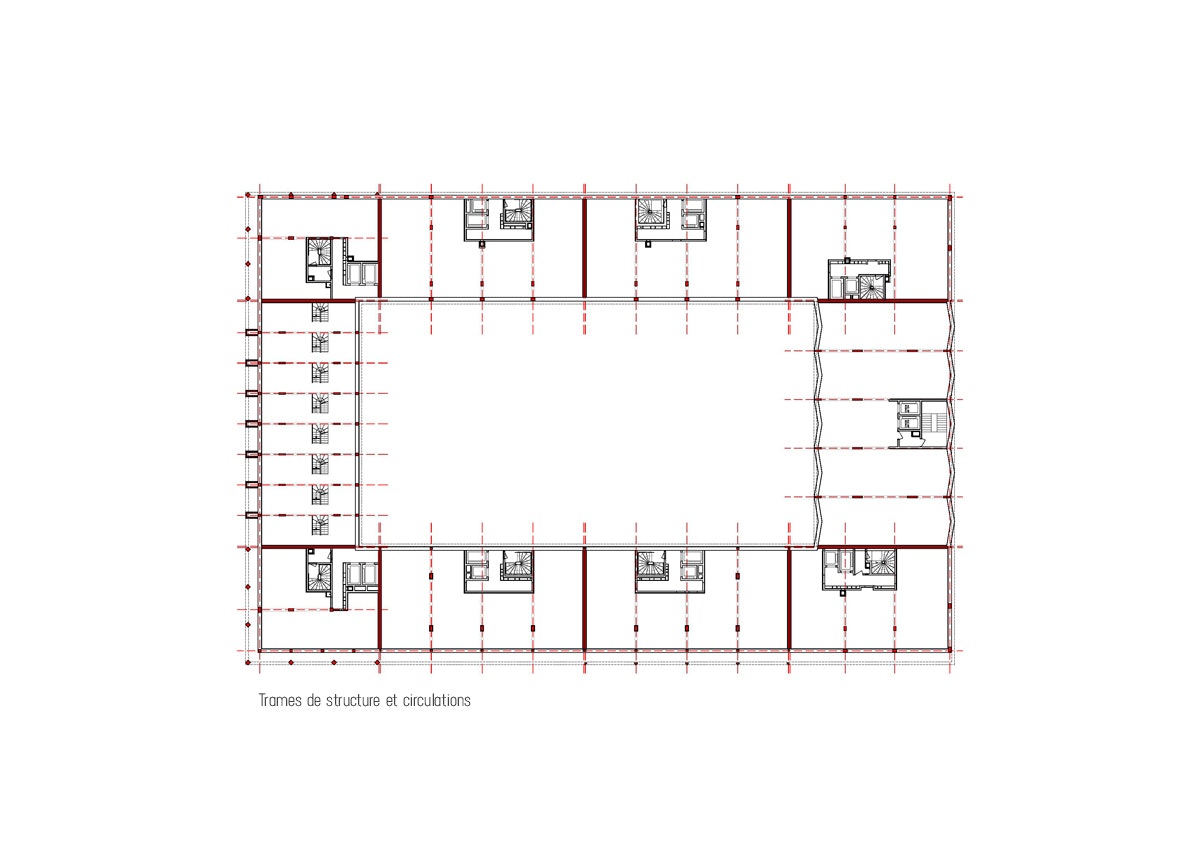
Universeine - Village Olympique, Saint-Denis (93)
  • Année
    2019-2024
  • Lieu
    Saint-Denis (93)
  • Client
    Vinci Immobilier
  • Programme
    680 logements, 222 chambres réversibles, commerces
  • Type
    Commande
  • Calendrier
    livraison 2024
  • Budget
    62 700 000 €
  • Architecte
    Ilot A1 : Béal Blanckaert architectes et Clément Vergély architectes
  • Urbaniste
    Dominique Perrault
  • associés
    Clement Vergely - Coordinateur
  • Collaborateurs
    B; Hiot, JV. Deleersnyder
  • Bureau d'études
    Incet
  • Paysagiste
    Wagon
  • Photographe
    © Takuji Shimmura
  • Performances
    Béton Bas Carbone, Structure bois, Label E3C2, Label NH Habitat HQE niv.1, Label biodiversity

Le village des Athlètes, fait exceptionnel, se
déploie de part et d’autre d’un fleuve majeur,
profondément lié à l’image de Paris et du
Grand Paris. De plus, il ne sera pas édifié sur
une table rase. Il doit composer, et c’est une
chance, avec un patrimoine paysager et un
patrimoine industriel d’une qualité
exceptionnelle.
Il devra constituer en 2050 un tissu urbain
robuste et lisible, fondé sur un « urbanisme
de liaison » en mesure d’inscrire ce tissu
dans une trame urbaine à l’échelle
métropolitaine, et dans une géographie
centrée autour de la Seine.
La construction du Village des athlètes est
aussi une opportunité pour développer le
caractère bas carbone de la construction en
France.
Réduire le plus possible l’impact carbone de
l’opération est une volonté partagée par tous
les acteurs du projet.


Enjeux urbains
Sur l’avenue de Seine, les porches donnant
accès aux cours plantées sont au nombre de
5. Sur la rue Volta, les porches donnant
accès aux cours plantées sont au nombre de
4. Leurs dimensions doivent être les plus
généreuses possibles.


Enjeux architecturaux
Une diversité d’écriture doit pouvoir
s’exprimer dans une cohérence d’ensemble.
La question de la vêture des façades reste
ouverte. Que peut-on envisager comme
matériaux de façade dans ce contexte ? Une
grande attention doit être portée à leur
pérennité, leur qualité et leur cohérence
d’ensemble. Une grande attention doit être
portée sur la pérennité des matériaux de
façade.


Enjeux domestiques
La priorité du projet est donnée aux qualités
et potentiels d’usages. Les espaces
extérieurs seront généreux et une lumière généreuse est dispensée dans les logements La disposition des balcons et loggias au Sud permet de vitrer largement ces façades en profitant d’une protection solaire passive.
La grande majorité des appartements sont traversant à partir des T3.