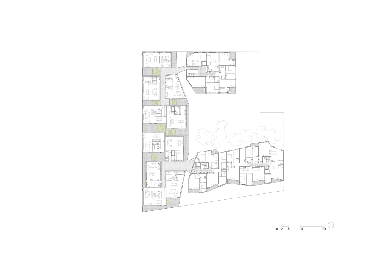
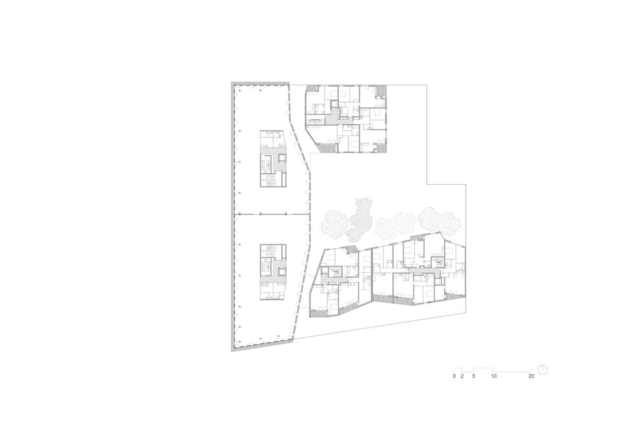
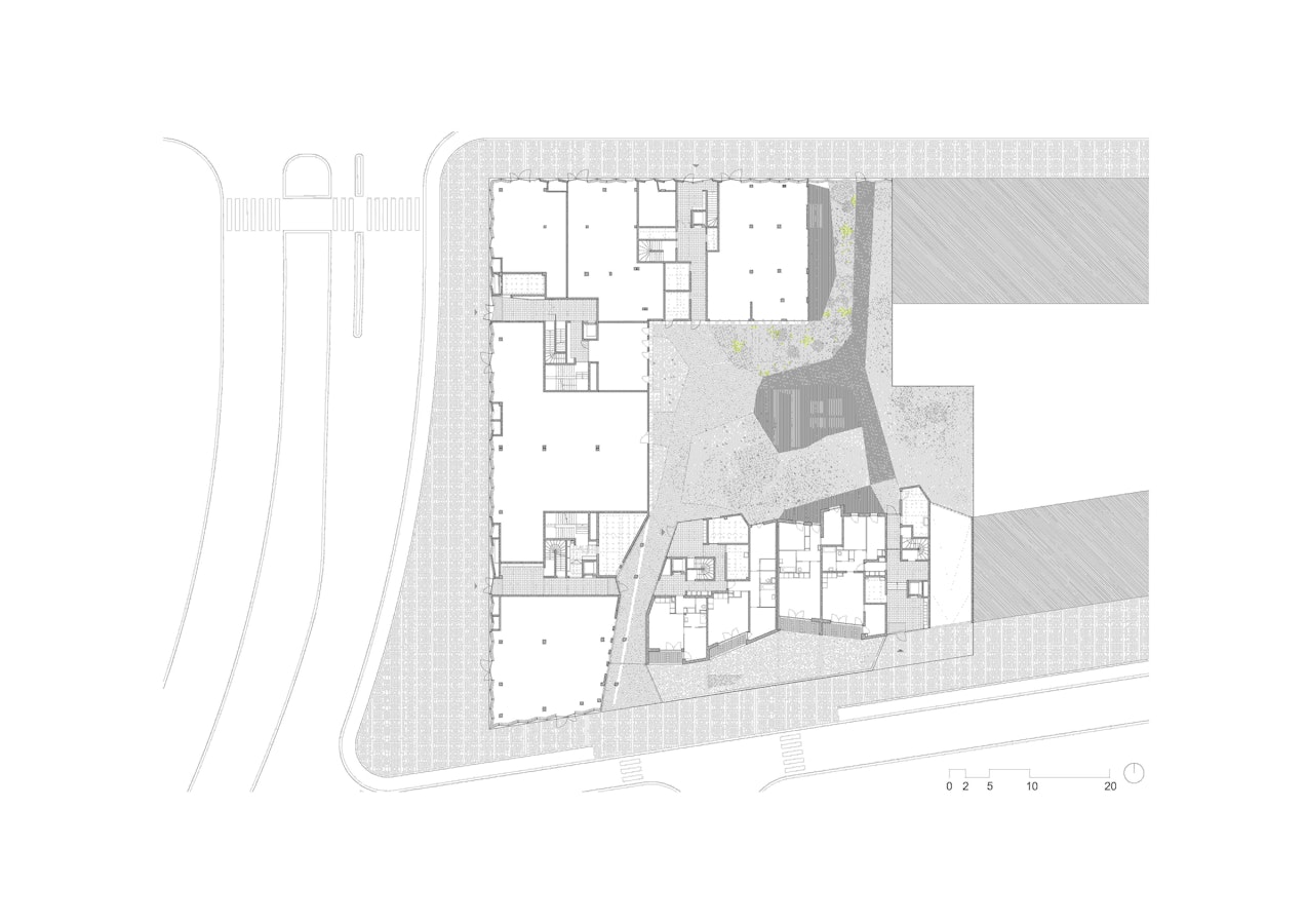
City'Zen - Immeuble mixte, Lille
  • Année
    2017
  • Lieu
    Lille
  • Client
    Nacarat
  • Programme
    80 logements, bureaux (3600 m²), commerces (1300m²)
  • Calendrier
    livré 2017
  • Budget
    16 000 000 € HT
  • Surface
    13 225 m² SHON
  • Architecte
    Béal Blanckaert
  • Collaborateurs
    T. Lecourt, E. Cailleaux, j. Agache, J. Lawniczak

Le projet 3-2, Porte de Valenciennes à Euralille, est enthousiasmant à plus d’un titre :

Il convoque le « plaisir d’habiter » à travers un programme riche de mixités et de rapports particuliers que pourront entretenir diverses fonctions de la ville : l’habitat, le travail et le commerce.

Nous ne séparons pas ces composantes : la ville que nous aimons vivre croise les temps, les lieux et les cheminements de nos activités humaines.

Il est vrai que nous habitons nos logis, que nous travaillons au bureau et faisons nos achats dans les commerces des quartiers.

Mais dans la vraie ville, nous savons que le bureau peut être habité, nous pouvons travailler chez soi, commercer sur internet ou vivre dans les cafés et les restaurants de la ville.

 Par ailleurs, nous lisons le plan urbain sous le couvert de plusieurs générosités. Il relie d’abord des quartiers qui étaient disjoints par de nouveaux tracés d’espaces publics. Il recompose la ville dans une morphologie nouvelle d’ « îlots jardins » associant la reconnaissance liée aux espaces publics partagés- les rues, les places - et y associe la présence forte de la nature contrôlée, souvent masquée en cœur d’îlot.

Dans cette perspective, nous souhaitons déployer plus encore cette générosité en proposant à l’îlot d’être poreux, significativement ouvert, c'est-à-dire traversé par les parcours et les regards. Ceci en vue de créer une ville riche et complexe, à l’image de celles que nous aimons. Nous souhaitons que les parcours dans la ville, qui passent des grandes avenues et des places collectives jusqu’à l’intimité du logement, s’effectuent au travers d’une multiplicité d’ambiances, d’atmosphères, d’interpellations visuelles  et humaines.

Ce programme et le projet que nous présentons ici nous aident à conforter ce qui nous anime: Nous habitons la ville, mais également, ce que nous ambitionnons : que la ville nous habite.