Tribunal administratif, Lille
  • Année
    2008
  • Lieu
    Lille (59)
  • Client
    CCI Lille métropole
  • Programme
    tribunal administratif
  • Type
    concours – projet lauréat
  • Calendrier
    projet abandonné
  • Budget
    7 000 000 € HT
  • Surface
    3 510 m2
  • Architecte
    Béal Blanckaert
  • Collaborateurs
    E.Veauvy, T.Foucray, H.Verniers, C.Jossien, L.Zimny

Dimensions symboliques et intelligibilité de l'idée de justice, le clin d'œil du hasard a voulu que le nouveau tribunal de commerce s'implante près de la tour « Mercure » lui-même « Dieu du commerce » (architecte Jean Willerval). Pour autant, il est essentiel que cette tour ne soit pas associée au nouvel édifice.

A cette fin, et en écho aux valeurs symboliques et d’ordonnancement qui interrogent les liens entre justice et architecture, le projet oscille entre monumentalité urbaine, et transparences intérieures.

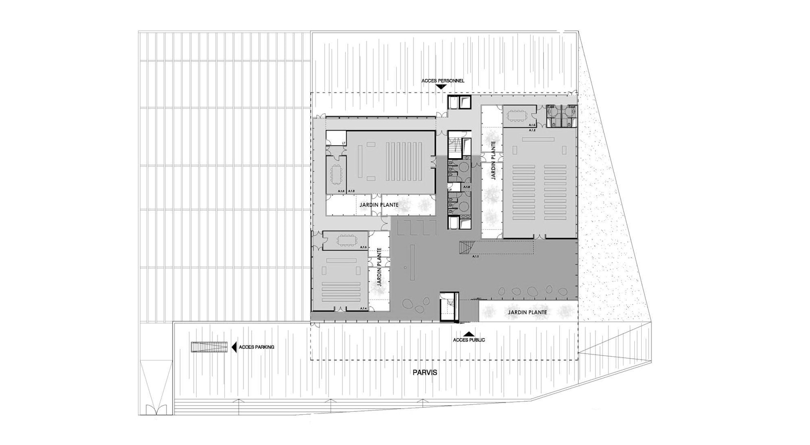
Cette monumentalité s’exprime par la silhouette haute et hiératique du tribunal en avancée sur l'espace public du boulevard. C’est par quelques marches à gravir pour accéder au parvis et le surplomb d’un porte-à-faux que le public quitte l’espace public et entre dans le tribunal avec une douce solennité.

Le hall est à la fois accueil, salle des pas perdus, lieu de rencontre mais antichambre des salles d’audiences qui se dressent en masses sombres à côté de patios illuminés. Ces dispositions simples ‡sont réglées dans une géométrie en plan exact sur un carré de 40 mètres de côté. Ne représente t'on pas habituellement la justice assise sur une pierre carrée?

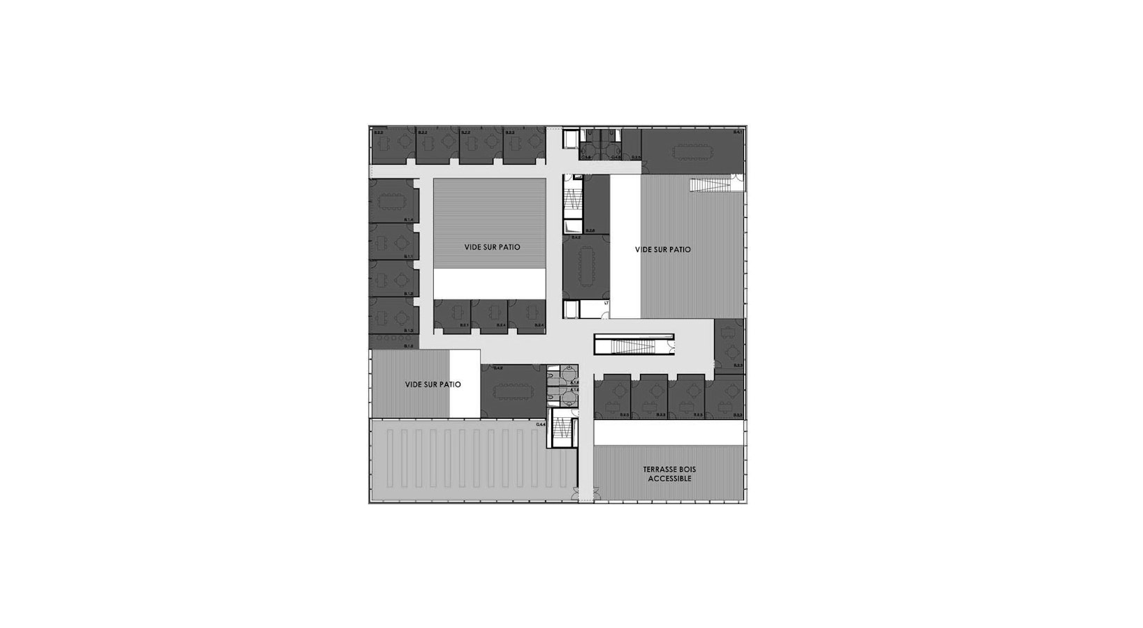
Cette forte structure du projet maintenant campé permet ainsi l’intuition d’un parement d'inox coloré disposé en écailles et clin d'œil au caducée, pour qualifier le volume opaque soulevé de l’administration et des juges au-dessus de la salle des pas perdus. Ce parement joue plutôt avec les couleurs du ciel du Nord en renvoiyant ses reflets tout au long de la journée, plutôt qu’avec le soleil permettant rarement sous ces latitudes les ombres tranchées.

Cette recherche  de monumentalité maîtrisée et contenue, et de lieux de travail agréables et valorisant est adaptée à l'idée que nous pouvons nous faire aujourd'hui de la justice. Elle assure dans ce projet une visibilité forte qui renseigne sur la mission que le tribunal de commerce accomplit dans le concert des institutions de la cité.