Centre d'Incendie et de Secours, Anzin
  • Année
    2007
  • Lieu
    Anzin (59)
  • Client
    SDIS du Nord
  • Type
    concours – projet non lauréat
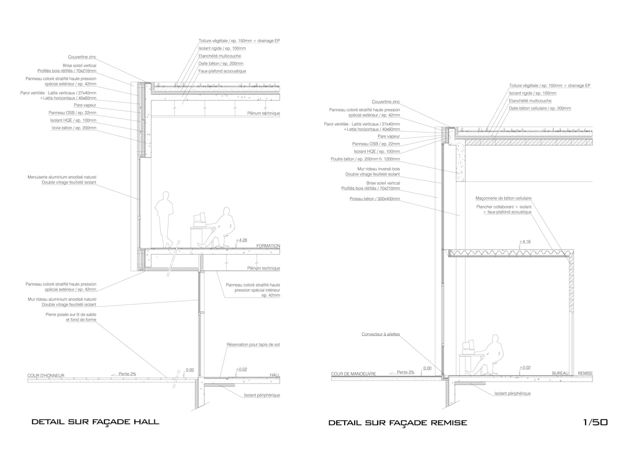
  • Surface
    3 000 m2
  • Architecte
    Béal Blanckaert

Par son gabarit R+1, associant des jeux de toitures végétalisées, en légères pentes, dans la perspective de la "coulée verte", caractéristique d’Anzin le projet s’inscrit "en douceur" dans son environnement.La qualification d’une place majeure ,ici la cour d'honneur ,valorise le rond-point et désigne l’entrée principale. Une image nouvelle de l’institution L'équipement affirme sa présence dans  la ville par le jeu “plastique” de volumes  différenciés.

L'édifice présente une image  unitaire, contemporaine, où s’équilibrent  des rapports variés entre transparences  et opacités.  Le projet ménage l’intimité d'une cour  de manœuvre protégée. Il offre la  transparence d’un édifice public,  synonyme d’accueil et de convivialité, tout en assurant l’isolement d’espaces  sécurisés. Traitée comme une grande  pièce à ciel ouvert", la cour structure  et hiérarchise les lieux.