Etablissement enseignement adapté, Crèvecoeur-Legrand
  • Année
    2006
  • Lieu
    Crèvecoeur - Legrand (60)
  • Client
    Conseil régional de Picardie
  • Programme
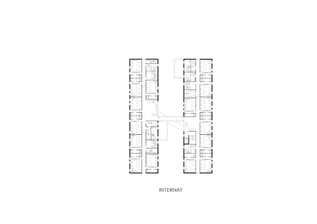
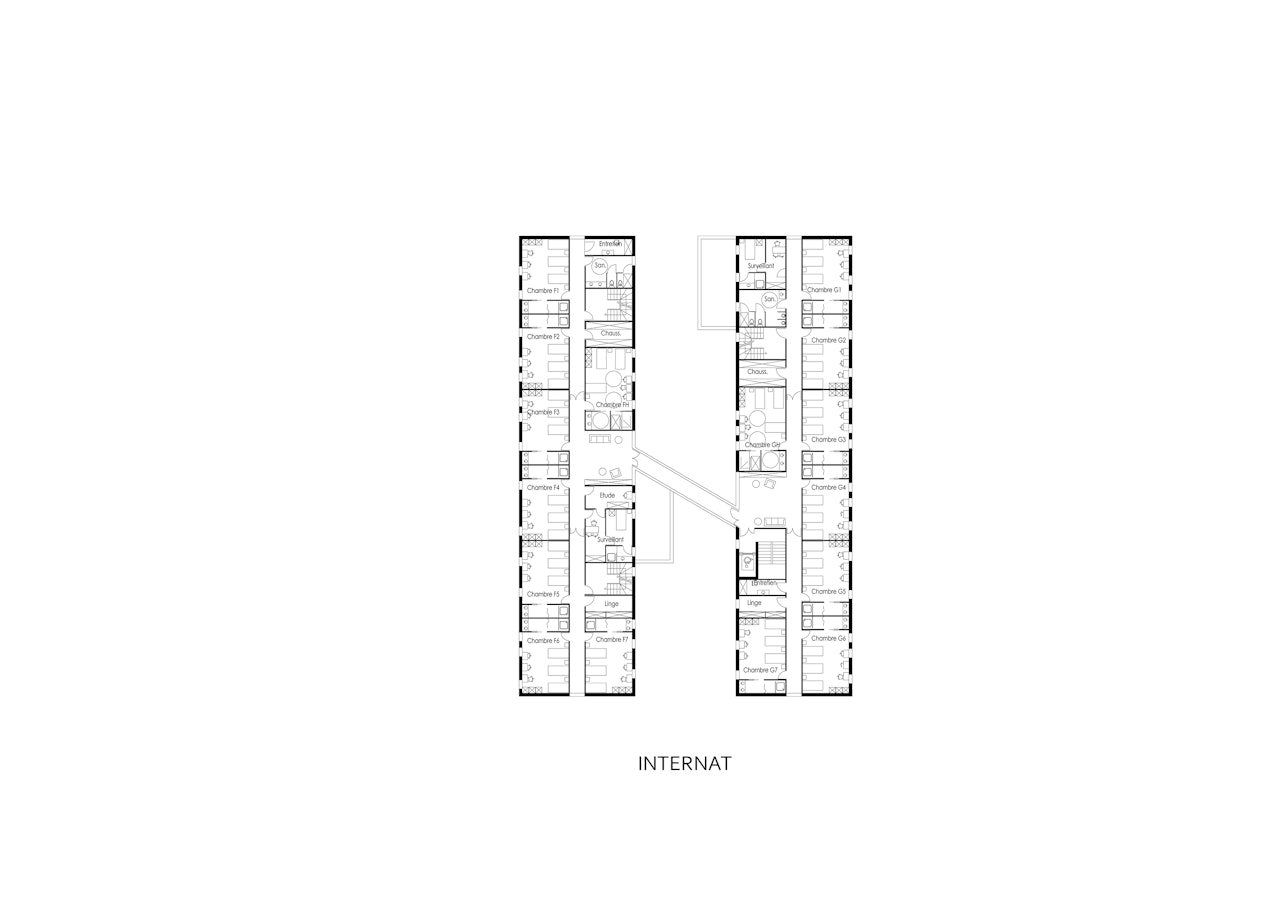
    Réhabilitation: internat, neufs: externat, logements de fonction, salle de sports
  • Type
    concours – projet non lauréat
  • Budget
    8 900 000 € HT
  • Surface
    8 980 m2
  • Architecte
    Béal Blanckaert
  • Cotraitants
    HDM, Sogeti, Tribu, Becquart

Les établissements régionaux d'enseignement adapté (EREA) reçoivent les élèves qui ne peuvent fréquenter utilement les classes normales d'enseignement général ou professionnel. Il consiste principalement en un enseignement professionnel, adapté ou non.

Celui de Crèvecoeur le Grand est situé dans un ensemble immobilier de grande qualité :

Le projet  doit révéler les qualités existantes du lieu, à travers la constitution d’un nouveau paysage construit et arboré, en respect des objectifs fixés par le programme et intégrer de façon sensible les nouvelles constructions dans ce site au potentiel remarquable.

Notre proposition s’établit donc dans une négociation subtile de ce programme avec le site, dans le respect des contraintes qu’il impose, (occupation antérieure, histoire du lieu, destination des locaux, fonctionnalités, cibles Hqe…), et dans l’écoute  des attentes qu’il suggère ( mises en relation, ouverture, perspectives d’avenir, …).

C’est en particulier dans la reconnaissance des enjeux paysagers et architecturaux que se forgent nos convictions et que se fonde notre parti d’aménagement.

Pour cela, nous associons 4 démarches :

  • Un diagnostic préalable des lieux, la rénovation des bâtiments et des espaces extérieurs existants qui le nécessitent.
  • Les rénovations "lourdes", remise à neuf et petites actions, précieuses et attentives, de mise en continuité, qui permettent des articulations fines au site.
  • L'édification de nouveaux équipements dans le respect des structures existantes.
  • Enfin, l'installation d'une "structure paysagère",  qui assure la lisibilité et la pratique du site; une structure qui permette l’organisation et l’articulation des éléments majeurs du programme.