Immeuble D+E, Lille
  • Année
    2005
  • Lieu
    Lille (59)
  • Client
    SIA Nexity
  • Programme
    100 logements dont 46 sociaux + locaux activités
  • Type
    concours - projet lauréat
  • Calendrier
    livré 2005
  • Budget
    8 550 000 € HT
  • Surface
    9 566 m2
  • Architecte
    Béal Blanckaert
  • associés
    Stephane Beel
  • Collaborateurs
    H. Verniers

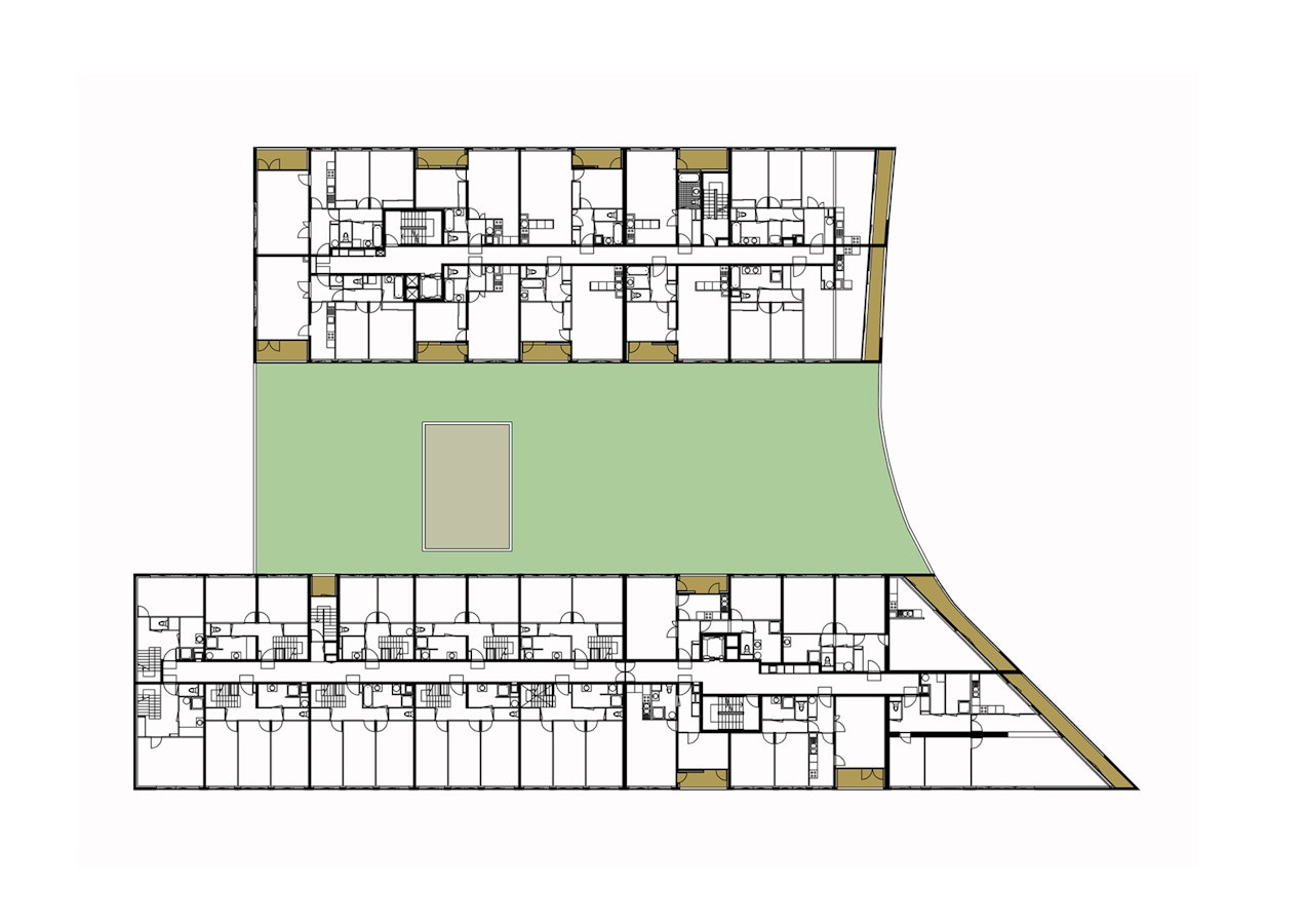
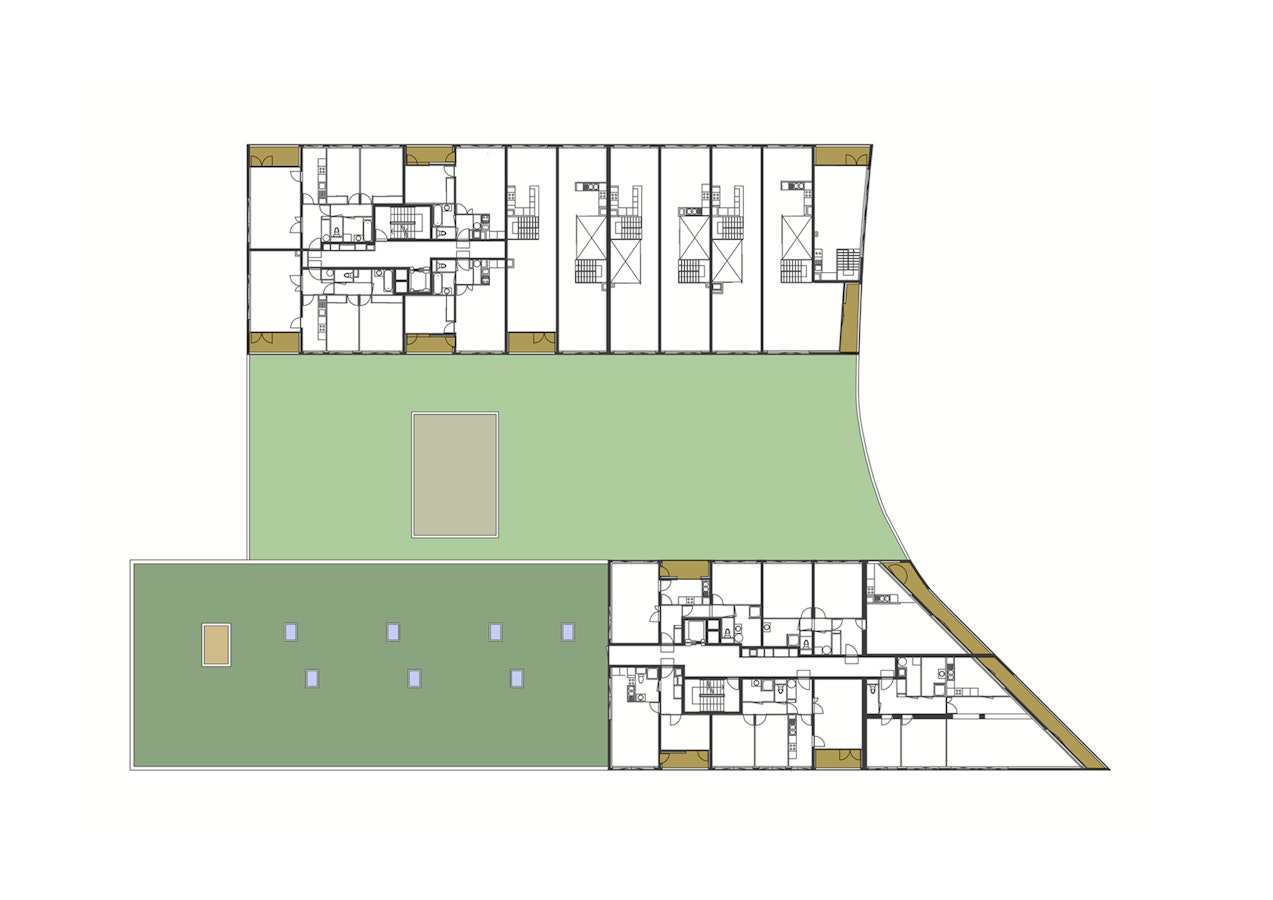
Le projet procède premièrement de la création d’un habitat de qualité pour tous, où chaque logement dispose d’un espace extérieur, terrasse, loggia ou patio, de pièces largement éclairées et de finitions de qualité.

L’architecture s’intègre dans son environnement (ilot Saint Maurice, urbaniste X. DeGeyter, Lalou Lebac, F. Fendrich) non par une intégration cosmétique, mais par la prise en compte des différents besoins et caractéristiques du lieu. Le programme suggère une superposition de fonctions dans une structure d’îlots ouverts. Notre projet amplifie ces données programmatiques de mixité des activités. Les enchevêtrements de fonctions et la variété des espaces ainsi que leurs connexions internes apportent une plus-value architecturale et urbaine.

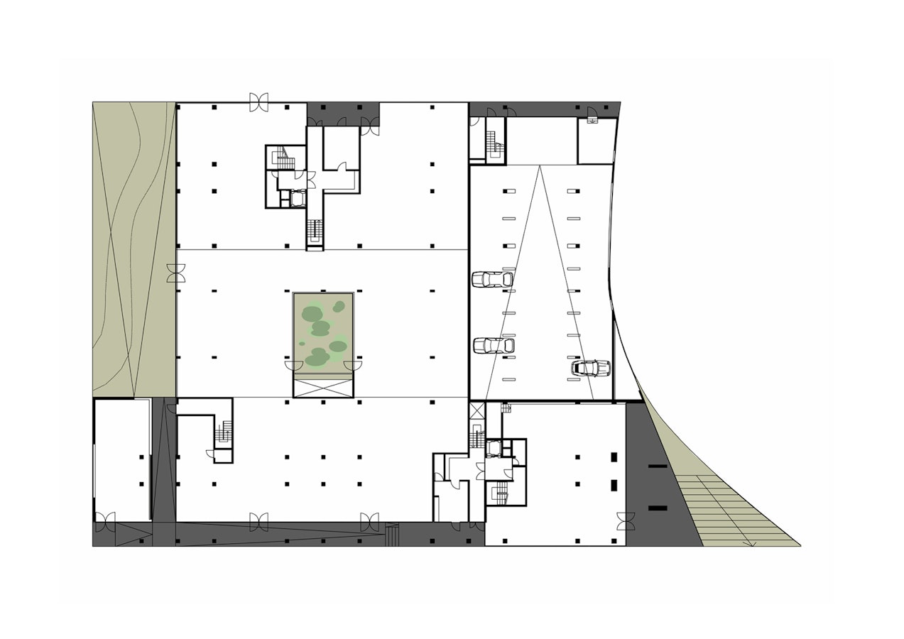
Le projet se caractérise enfin par la figure d’un porte-à-faux de 15 mètres, performance volontairement contenue, qui répond à la fois aux contraintes d’un sous-sol encombré par la ligne de métro, mais surtout à la volonté de cadrer le paysage d’Euralille depuis les faubourgs dans la perspective de la rue Eugène Jacquet.