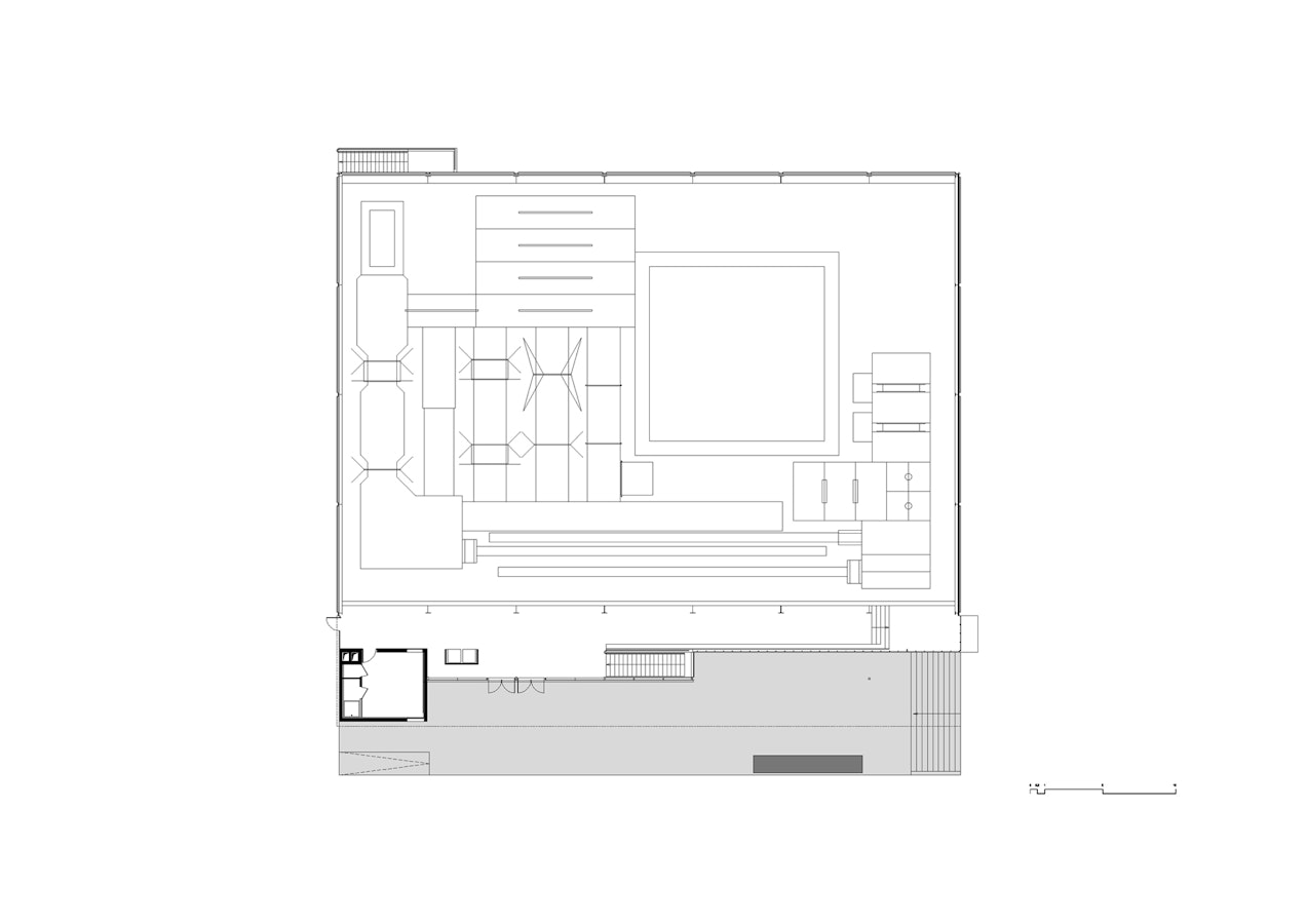
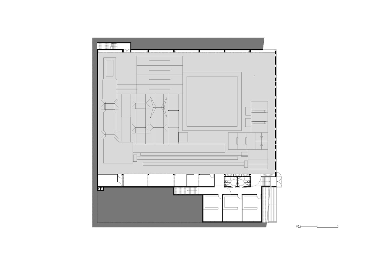
Salle Gaston Berger, Lille Ronchin (59)
  • Année
    1998
  • Lieu
    Ronchin (59)
  • Client
    Université LIlle II
  • Programme
    Salle de gymnastique
  • Type
    concours – projet lauréat
  • Calendrier
    livré 2000
  • Budget
    760 000 €HT
  • Surface
    1 703 m²
  • Architecte
    Béal Blanckaert

 « Cette opération, fortement contrainte par un faible Coût des travaux révèle un travail intéressant sur l’échelle et l’intégration d’un équipement qualifiant un site peu structuré

Situé dans le parc sportif du Lille Université Club, le gymnase est implanté sur un remblai cerné d’arbres de hautes tiges. Le bâtiment s’intercale avec justesse entre les plus beaux sujets sauvegardés et s’enfouit dans le sol pour n’offrir en superstructure que l’équivalent d’un bâtiment R+1. Ce parti pris volumétrique élégant contraste avec la halle de tennis voisine, et introduit au sein du campus une échelle domestique assez rare. L’entrée est magnifiée par un large parvis qui se prolonge par un escalier permettant de multiplier les accès à l’équipement et de constituer un espace public majeur(…)

Avec un jeu typologique visant à renforcer la qualité du bâtiment, Antoine Béal et Ludovic Blanckaert ont eu le souci de réaliser un véritable « pavillon de la gymnastique » plutôt qu’une simple application du Neufert. Le projet cumule les éléments étrangers aux archétypes des salles présentes sur le site : mur-rideau, parvis et péristyle de l’entrée ; apport de lumière en partie basse des façades ; série de petites menuiseries, boite sommitale : transformation abstraite d’un shed industriel. Ces multiples originalités ne prennent pourtant pas le dessus sur la rigueur du parti initial : la réalisation est partout modeste et économique et exploite la simplicité constructive, dans un souci de maîtrise des coûts (moins de 5 MF HT )….

C.Hespel – in AMC Le Moniteur Annuel 2001-extrait